국가기술자격 보유. 건설기술경력증: 건축기사(중급), 품질관리기사(중급), 방수기능사, 도장기능사, 온수온돌기능사, 도배기능사
전체메뉴
010-3531-9108
054-862-9300
전문가의 정확한 견적
메뉴열기
회사소개
인사말
찾아오시는길
주요업무
포트폴리오
견적문의
고객센터
견적문의
인테리어에서 각종 건축·보수까지
광성건설과 함께한 아름다운 공간들입니다.
견적문의
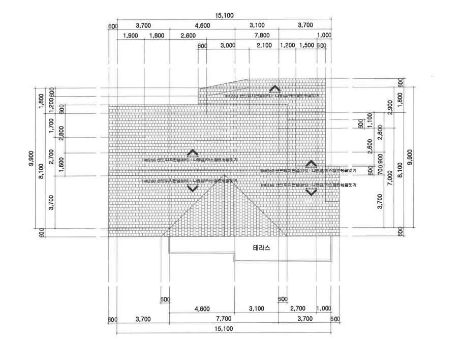
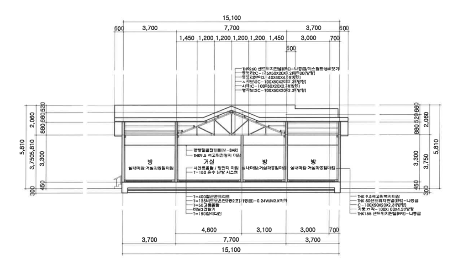
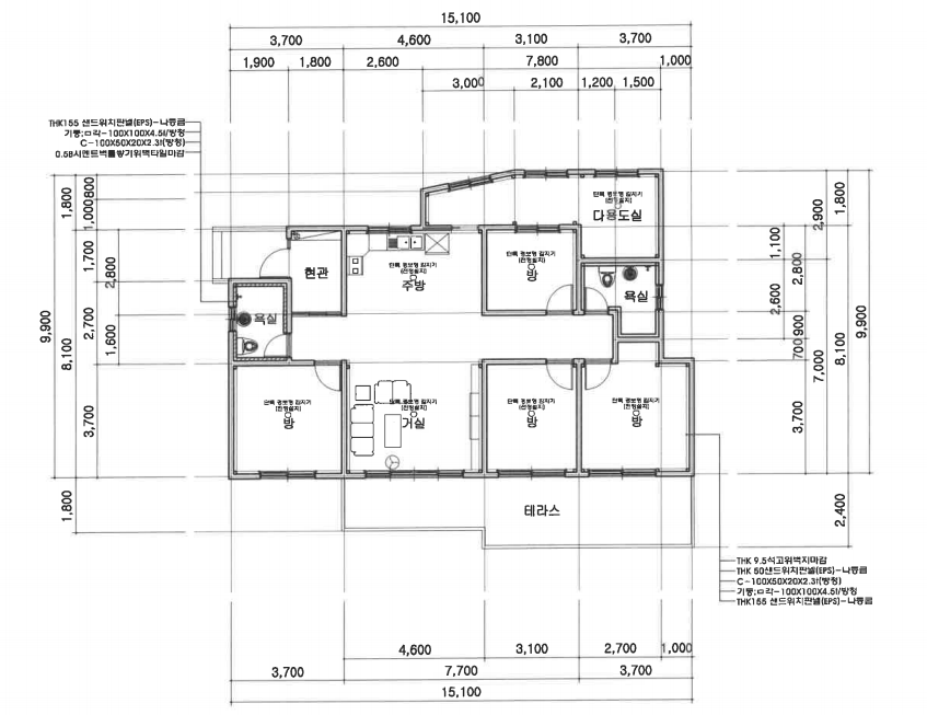
지붕 및 외벽 견적문의
게시판 상세보기
작성일
2021-03-21 19:26:23
조회수
327
연락처
010-****-****
이메일
*******
*************************
첨부파일
캡처1.PNG
캡처2.PNG
캡처3.PNG
이전 다음 글보기
이전글
문의드립니다
다음글
성주 조립식주택 시공견적
수정
삭제
목록